Onder bod:Suikerstraat 80, 3311 VV Dordrecht - Foto
Onder bod
+31

Suikerstraat 80 3311 VV Dordrecht € 325.000,- k.k.

  • Woonhuis
  • 3 kamers
  • 2 slaapkamers
  • 1 badkamers
  • Bouwjaar 1900
  • 120 m² perceeloppervlakte
  • 69 m² gebruiksoppervlakte

Beschrijving

Welkom bij dit plaatje van een woning aan de Suikerstraat 80 in Dordrecht!

Deze charmante woning uit 1900 combineert stijl, functionaliteit en een uitstekende ligging in een beschermd stadsgezicht. Het biedt een ideale basis voor comfortabel wonen, met uitzicht op de iconische Grote Kerk van Dordrecht en op loopafstand van het historische havengebied.

INDELING:

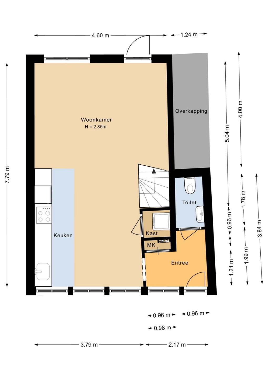
BEGANE GROND:

Bij binnenkomst in de hal wordt u verwelkomd door een lichte ruimte. Vanuit hier heeft u toegang tot het separate toilet en de ruime woonkamer, die door de grote ramen veel natuurlijk licht ontvangt en een open uitstraling heeft. De moderne open keuken aan de voorzijde is van alle gemakken voorzien, zoals een inductiekookplaat, ovencombinatie, afzuigsysteem, vaatwasser en koel-/vriescombinatie.

De keuken is in 2021 vernieuwd en biedt voldoende opbergruimte en is praktisch ingedeeld. De keuken is voorzien van een wasbak, kookplaat met afzuigkap, vaatwasser, combimagnetron, koelkast en vriezer. Daarnaast is er een functionele ruimte voor de wasmachine en droger,

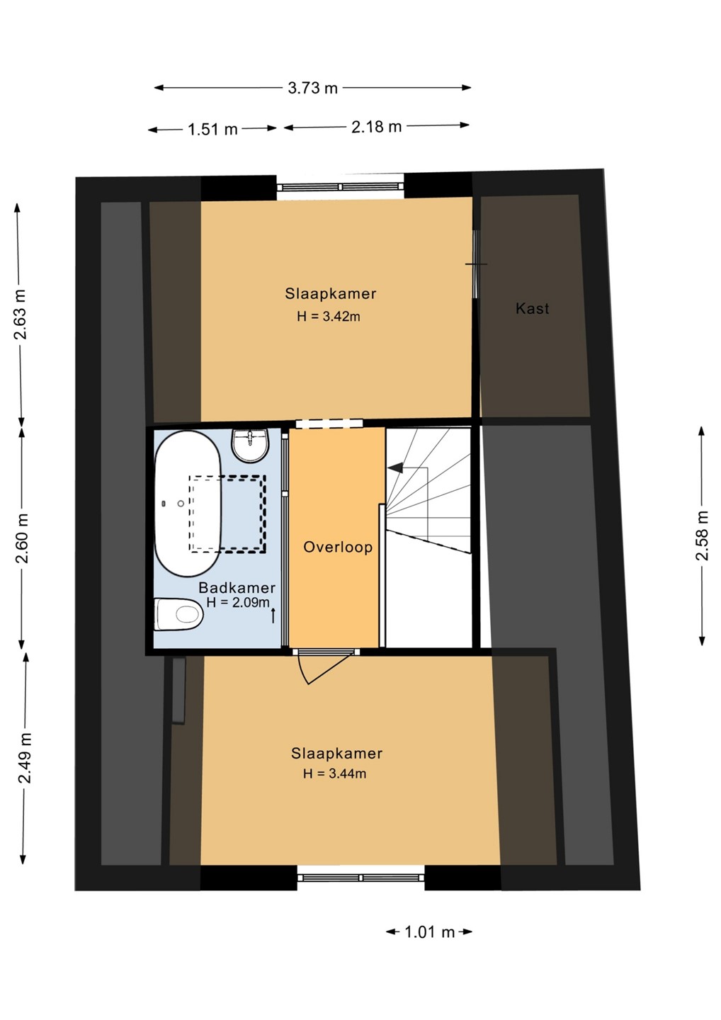
EERSTE VERDIEPING:

Op de eerste verdieping vindt u twee slaapkamers, beide van goed formaat en licht, ideaal voor een goede nachtrust. De slaapkamers zijn als volgt ingedeeld:

Slaapkamer 1 (voorzijde woning): circa 3,73m x 2,49m.
Slaapkamer 2 (achterzijde woning): circa 3,73m x 2,63m.

De badkamer heeft een vintage uitstraling en is voorzien van een vrijstaande badkuip en een tweede toilet. Dit biedt extra comfort en maakt de ruimte een fijne plek om tot rust te komen.

BUITENRUIMTE:

De ruime achtertuin biedt volop mogelijkheden om het naar eigen wens in te richten. Het tuinhuisje is ideaal voor extra opbergruimte of als werkplek/hobbyruimte. Daarnaast is er een overdekte opbergruimte naast de woning. De tuin ligt op het noordoosten, waardoor u kunt genieten van de ochtendzon.

LOCATIE:

De woning ligt in een rustige en sfeervolle buurt van Dordrecht, dicht bij het centrum. Alle noodzakelijke voorzieningen, zoals winkels, scholen en openbaar vervoer, zijn binnen handbereik. De rustige omgeving in combinatie met de nabijheid van het stadsleven maakt deze locatie ideaal voor zowel jongere als oudere bewoners. Het historische Dordtse havengebied en de iconische Grote Kerk zijn op korte loopafstand.

BIJZONDERHEDEN:

- Woonoppervlakte: 69m²;
- Bouwjaar 1900;
- Energielabel D;
- Beschermd stads- of dorpsgezicht;
- 2 Slaapkamers;
- Tuin gelegen op het noordoosten;
- Nieuwe cv-ketel (geplaatst november 2024);
- HR glas in de woning;
- Overdekte opbergruimte naast de woning;
- Oplevering in overleg.

Kortom, een sfeervolle woning in een prachtige, historische omgeving met alle moderne voorzieningen binnen handbereik!

Aanmelden voor een bezichtiging kan per mail. De makelaar leidt u graag rond voor een vrijblijvende bezichtiging.

Kaart

Kenmerken

Overdracht

Referentienummer
18
Vraagprijs
€ 325.000,- k.k.
Status
Onder bod
Aanvaarding
In overleg
Aangeboden sinds
Maandag 22 september 2025
Laatste wijziging
Vrijdag 10 oktober 2025

Bouw

Type object
Woonhuis, eengezinswoning, tussenwoning
Soort bouw
Bestaande bouw
Bouwperiode
1900
Dakbedekking
Dakpannen
Type dak
Zadeldak
Isolatievormen
HR-glas

Oppervlaktes en inhoud

Perceeloppervlakte
120 m²
Woonoppervlakte
68,9 m²
Inhoud
292 m³
Oppervlakte externe bergruimte
8,07 m²
Oppervlakte gebouwgebonden buitenruimte
4,96 m²

Indeling

Aantal bouwlagen
2
Aantal kamers
3 (waarvan 2 slaapkamers)
Aantal badkamers
1 (en 1 apart toilet)

Locatie

Ligging
In centrum

Tuin

Type
Achtertuin
Hoofdtuin
Ja
Oriëntering
Noord-oost
Staat
Normaal

CV ketel

CV ketel
Remeha TZERRA ACE-Matic 28C CW4
Warmtebron
Gas
Bouwjaar
2024
Combiketel
Ja
Eigendom
Eigendom

Uitrusting

Warm water
CV-ketel
Verwarmingssysteem
Centrale verwarming
Ventilatie methode
Natuurlijke ventilatie
Keukenvoorzieningen
Inbouwapparatuur
Badkamervoorzieningen
Douche
Ligbad
Toilet
Wastafel
Glasvezelaansluiting aanwezig
Ja
Tuin aanwezig
Ja
Heeft schuur/berging
Ja

Kadastrale gegevens

Kadastrale aanduiding
Dordrecht E 1268
Perceeloppervlakte
30 m²
Omvang
Geheel perceel
Eigendomsituatie
Eigen grond
Kadastrale aanduiding
Dordrecht E 1162
Perceeloppervlakte
90 m²
Omvang
Geheel perceel
Eigendomsituatie
Eigen grond